Butas
- 74,900€
Apibūdinimas
Parduodamas, tvarkingas ir jaukus, 2 kambarių butas, Eiguliuose, G. Vilko g.
Parduodamas su visais baldais ir buitine technika.
NAMAS:
▪ Statybos metai – 1978;
▪ Pastato tipas- blokinis;
▪ Aukštas 8/9a.
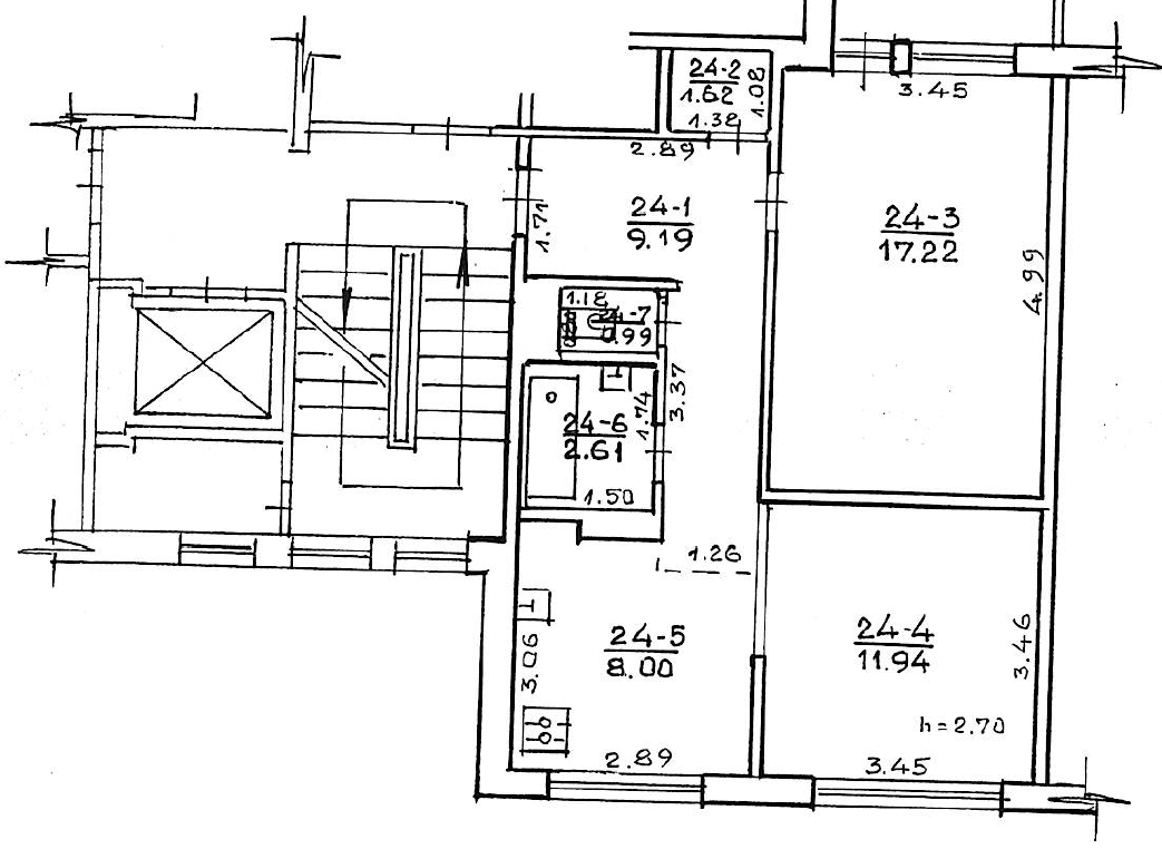
BUTO INFORMACIJA:
▪ Svetainė sujungta su virtuve 19,94 kv. m.;
▪ Miegamasis 17,22 kv. m.;
▪ WC ir vonios kambarys 3,60 kv. m.;
▪ Koridorius 9,19 kv. m.;
▪ Balkonas;
▪ Sandėliukas – drabužinė 1,62 kv. m.;
▪ Butui priklauso rūsys;
Tvarkinga laiptinė, lauko durys su kodine spyna..
Vaikų žaidimo aikštelė su poilsio zona.
Šalia PC, vaikų darželiai, mokyklos, viešojo transporto sustojimai. Puikus susisiekimas automobiliu arba viešuoju transportu. Saugi ir rami kaimynystė.
Adresas
Atidarykite „Google Žemėlapį“-
Adresas: 11, Geležinio Vilko g.
-
Miestas: Kaunas
-
Apskritis: Kauno
-
Pašto Kodas: 49273
-
Rajonas: Eiguliai
-
Šalis: Lithuania
Išsami Informacija
Updated on 24 kovo, 2022 at 10:57 am-
Kaina 74,900€
-
Nuosavybės Dydis 52 m²
-
Miegamasis 1
-
Kambariai 2
-
Vonios Kambarys 1
-
Pastatymo Metai 1978
-
Nuosavybės Tipas Butai
-
Nuosavybės Būsena Parduotas
Papildoma Informacija
-
Pastato tipas blokinis
-
Šildymas centrinis
-
Langai mediniai
-
Durys Šarvo
-
Sandėliukas drabužinė
-
Grindys plytelės ir laminatas















