Namas
- 395,000€
Apibūdinimas
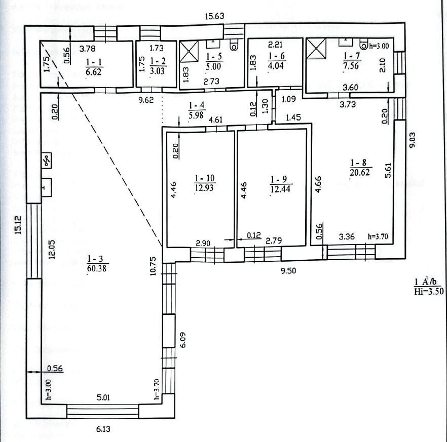
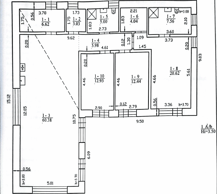
Parduodamas šalia Vilniaus , Avižienių sen., Pikutiškių km., Žiemos g., L formos, naujos statybos 2022m. namas su erdvia terasa 55 kv.m Tai šiuolaikiškas gyvenamasis būstas, puikiai tinkantis šeimai, kuri vertina komfortą ir privatumą.
Namo informacija:
- Statybos metai: 2022.
- Bendras namo plotas: 138,6 kv. m.
- Terasa: 55 kv. m., iš kalibruotos C24 medienos, eglės, kas suteikia natūralų ir šiltą įspūdį.
- Tvora: Skardinė „Rombas“, užsėta žolytė – tai suteikia modernų ir tvarkingą aplinkos įspūdį, taip pat lengvą priežiūrą.
- Langai: Novatoriški 6 kamerų langai, 80 mm pločio, su 3 tarpinių sistemomis „Plastimet“ premium klasės – tai užtikrina puikią šilumos izoliaciją ir mažina triukšmą.
- Stogas: Skarda, klasikinio dizaino profilis „Ruukki Classic C“ – tai ne tik estetiškai patrauklus sprendimas, bet ir ilgaamžis bei atsparus įvairiems orams.
- Fasadas: Lanksčios klinkerio plytelės – šios plytelės suteikia namui modernią išvaizdą, yra atsparios drėgmei, taip pat ilgalaikės ir lengvai prižiūrimos.
- Trinkelės: 90 kv. m. trinkelės aplink namą – užtikrina patogų ir tvarkingą privažiavimą bei aplinką.
Adresas
Atidarykite „Google Žemėlapį“-
Adresas: 2, Žiemos g.,
-
Miestas: Pikutiškių k.
-
Apskritis: Avižienių seniūnija
-
Pašto Kodas: 14300
-
Rajonas: Vilniaus
-
Šalis: Lithuania
Išsami Informacija
Updated on 27 lapkričio, 2025 at 12:20 pm-
Kaina 395,000€
-
Nuosavybės Dydis 138,6 m²
-
Žemės Plotas 100 m²
-
Miegamieji 3
-
Kambariai 4
-
Vonios Kambariai 2
-
Pastatymo Metai 2022
-
Nuosavybės Tipas Namai
-
Nuosavybės Būsena Naujas objektas
Papildoma Informacija
-
Langai 6 kameros
-
Grindys akmens masės plytelės
-
Terasa 55kv.m.
-
Sklypas 10a
-
Lubos 3m.
-
Tvora "Rombas"










